Projet de fin d’études – DEA (RIBA Part 1)
Ce projet urbain a été réalisé dans le cadre de mon projet de fin d’études avant l’obtention de mon Diplôme d’Études en Architecture (RIBA Part 1). Il s’inscrit dans une démarche de revalorisation territoriale visant à renforcer l’attractivité économique et culturelle de la ville d’Évora.



Évora est une petite ville portugaise riche d’un patrimoine culturel exceptionnel. Son tissu urbain, composé de ruelles étroites et de bâtiments colorés, constitue une source d’inspiration précieuse pour le développement de projets contemporains respectueux du contexte historique.




L’objectif principal du projet est de créer un axe structurant entre le centre historique végétalisé et les secteurs industriels périphériques, souvent délaissés. Ce nouvel axe, pensé comme un « lien » urbain, ambitionne de stimuler les synergies entre les différentes polarités de la ville, en favorisant l’émergence d’une dynamique commerciale et culturelle renouvelée.


Ce lien est animé par une série d’équipements culturels — cinéma, hôtel, bureaux, centre d’art, amphithéâtre en plein air et logements collectifs — implantés le long d’un parcours minéral ponctué de murs bas qui cadrent les vues et accompagnent le cheminement. L’ensemble crée une séquence spatiale rythmée, propice à la déambulation et à la stimulation sensorielle.





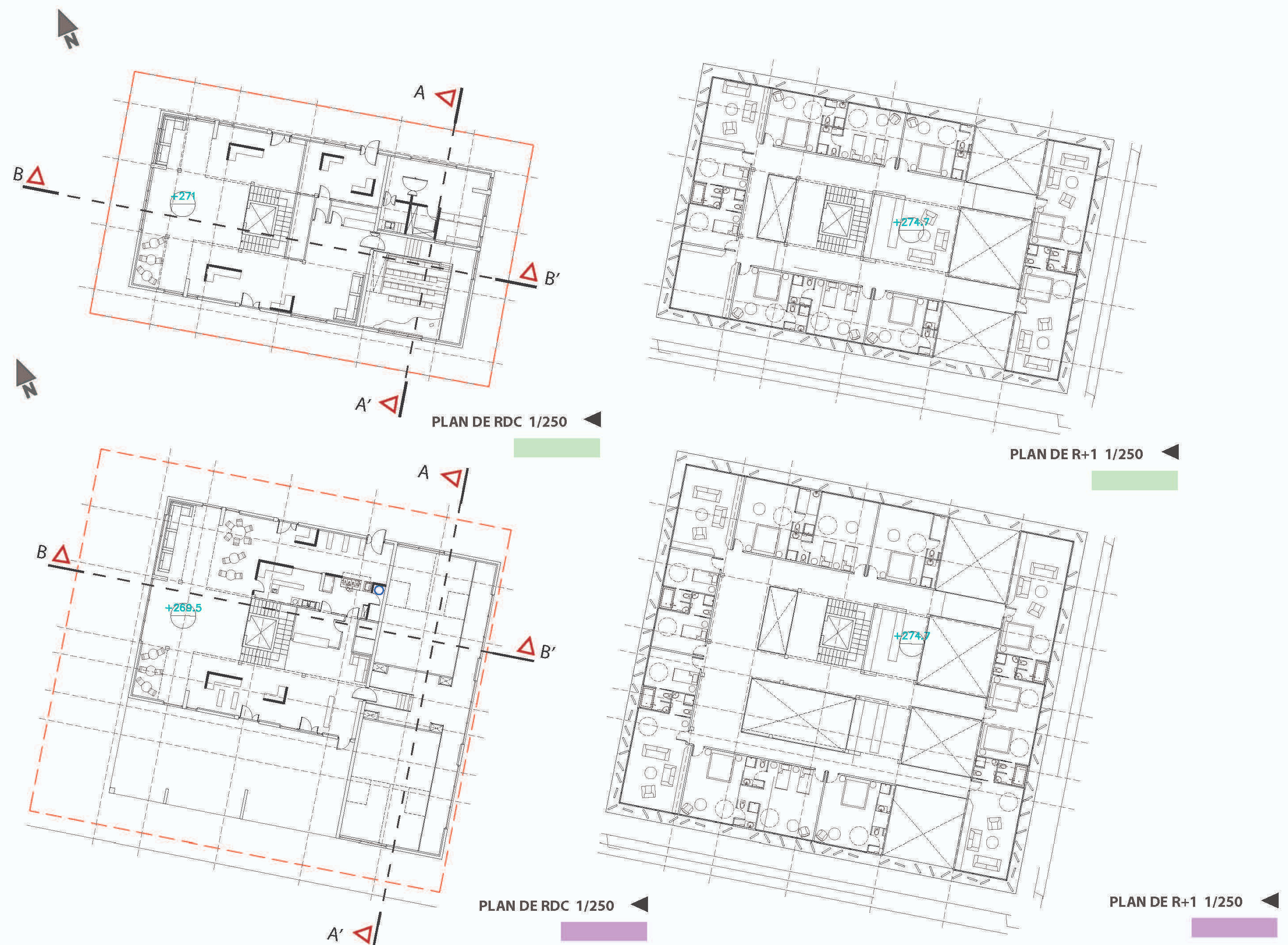
La ville étant construite sur une colline naturelle, la hauteur de chaque bâtiment a été déterminée en fonction de son altitude. En croisant les données topographiques et les gabarits bâtis, une ligne directrice de hauteur a été établie afin de préserver l’harmonie du paysage urbain et d’éviter toute rupture dans la silhouette de la ville.
Le projet a été modélisé à l’aide des logiciels Rhino et Grasshopper. Le climat méditerranéen de cette région impose une attention particulière à la gestion solaire. L’architecture locale privilégie la verticalité, avec des ouvertures étroites mais hautes, afin de limiter les apports solaires directs, notamment en façade ouest.
Les bâtiments sont habillés de brise-soleil en béton, positionnés de manière paramétrique sur les façades pour optimiser la protection thermique et lumineuse. Grâce à l’analyse des trajectoires solaires et des données climatiques du site, un modèle de répartition des lames a été généré via Grasshopper : les façades nord sont plus ouvertes pour favoriser la lumière indirecte, tandis que les façades sud sont densément protégées pour limiter les surchauffes.


