So i often do a lot of my architecture project posts in French, seeing as how my clientelle is mostly french. That being said i do enjoy a good rant in english from time to time.
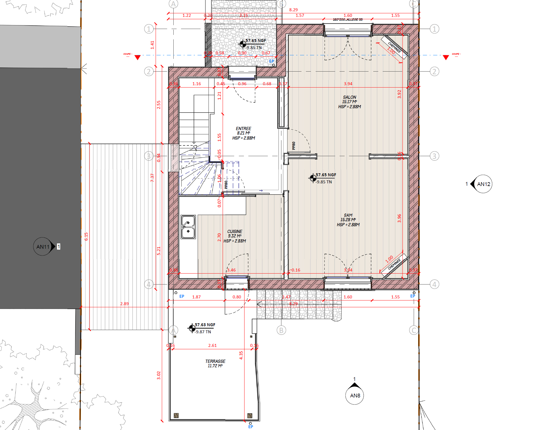
The project started off as a simple enough survey of the house and the terrain that was to lead to an extension of the south side of the house. Lovely old house full of charm and details inside and out.




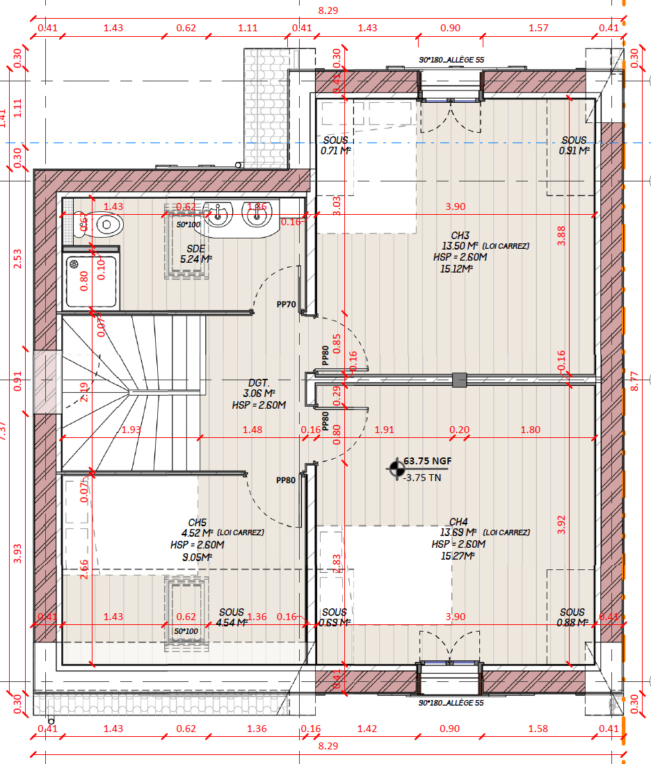
The house is composed of 3 levels as well as a basement that is to lead out onto the the new extension being built.


The façades on the north facing side have a delicious ancient feel to them and we can see that the colors tend to the warm side. Slightly surprising for Paris.
To see the rest of the project click here
