Projet de maison individuelle à RIS-ORANGIS. Le nom du client restera discret. Le projet consistait de faire une proposition a la mairie qui allait a l’encontre du PLU, en utilisant l’article général 5 du PLU de RIS-Orangis pour démontrer que des contraintes parcellaires du a un découpage non-régulier pourrait permettre la construction d’une maison plus longue que le linéaire de 10m autorisé. Cette proposition fut refusé.

Une grosse contraite du projet est le volume rectangulaire et les accès sur le terrain. Un accès sur le coté favorise une répartition des pièces de manière plus uniforme. Un accès frontal aurait pour effet un long couloir central qui serait de la surface perdue. Problème. Le PLU demande un passage non-obstrué de 2,50m sur le coté latéral de la parcelle ainsi que une volonté d’avoir aucune ouverture sur ce même coté latéral et si je veux un vide sanitaire, il me faut des marches. Le projet propose donc un porche avec accès latéral. Les marches sont renfoncés et la porte sur le coté. Pas d’ouvertures, pas d’obstacles. gnhihihi

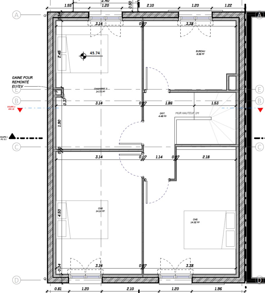
En vu du refus de négocier avec la mairie et les nouvelles élections municipales il a fallu retravailler sur le projet de base et respecter le PLU. Le but du jeu étant d’augmenter la surface de la maison et on a été contrait de dépasser 120m² et de passer a 167m² en rajoutant un deuxième étage. La devise étant, “plutôt trop que pas assez”. Ça va lui coûter plus cher mais la mairie est borné des fois. L’aménagement fut modifié par le client qui souhaité un salon beaucoup plus grand.









