MI à Ris-Orangis

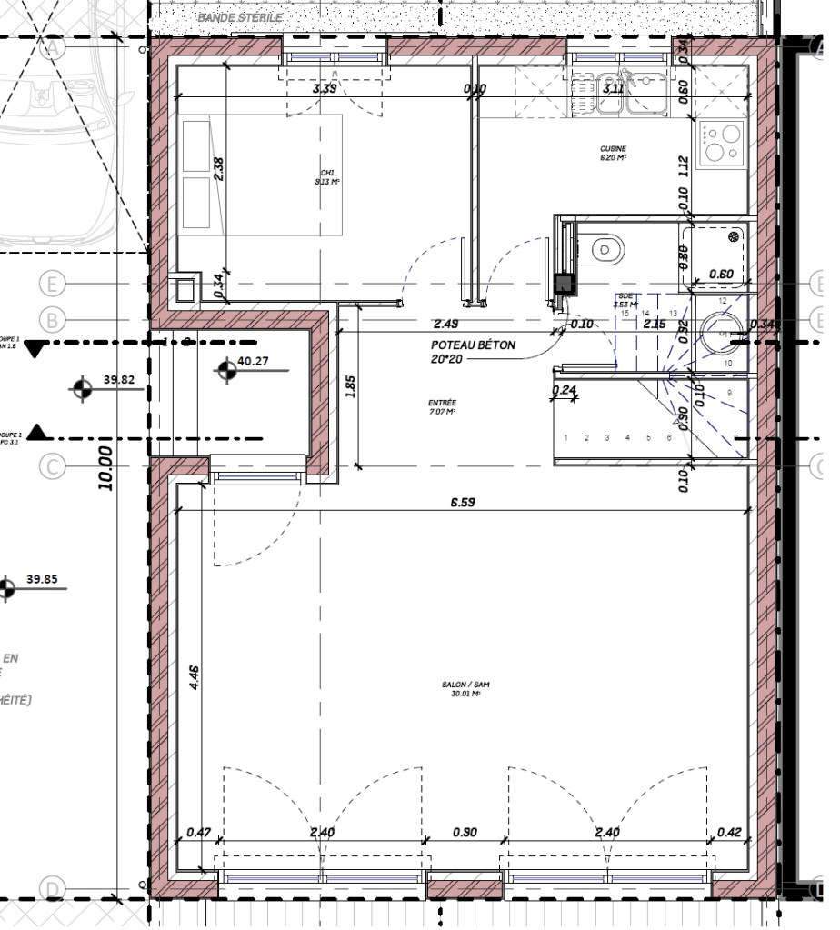
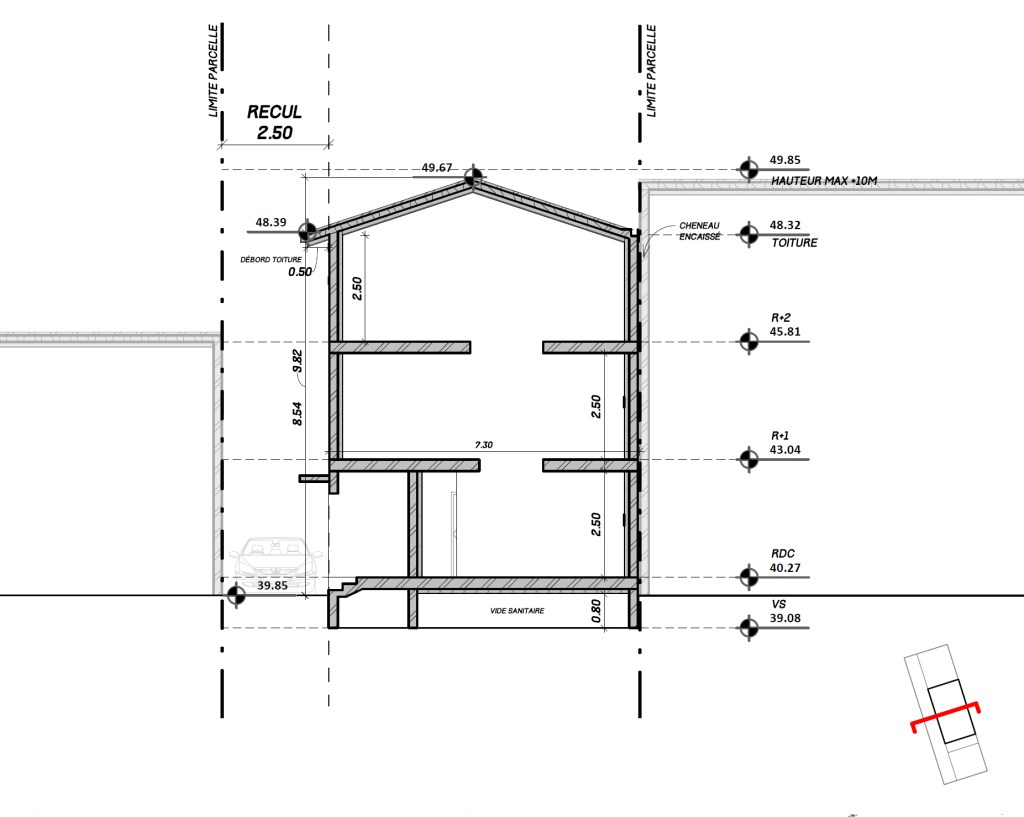
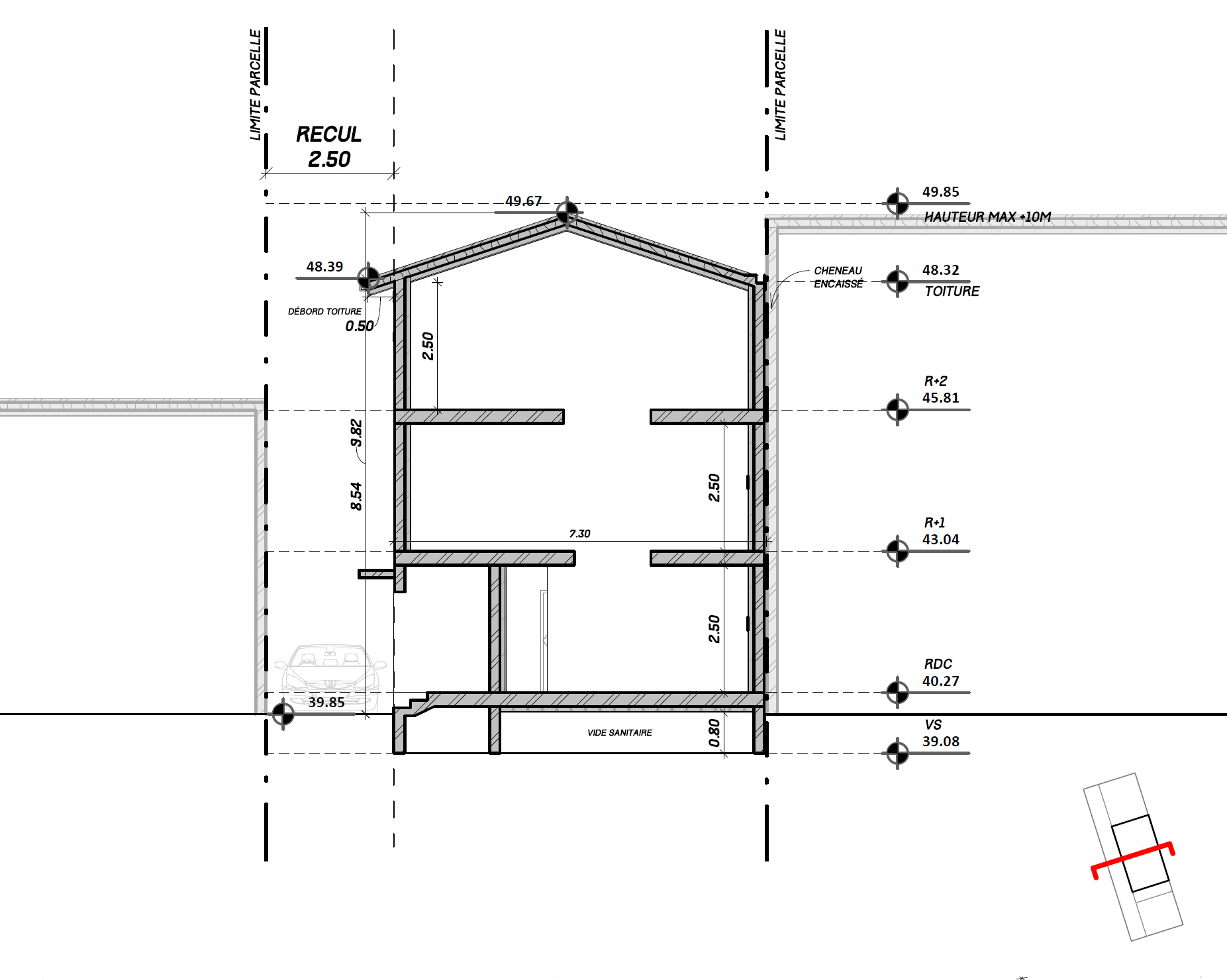
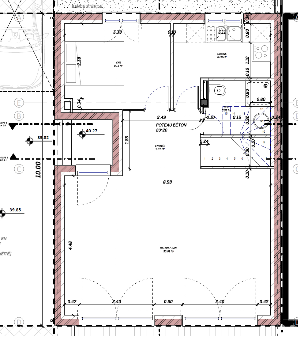
Projet de maison individuelle à RIS-ORANGIS. Etude moins que facile puisque une négociation qui remettait en question le PLU été demandé par le client. Le PC à été accordé mais un bras de fer avec la mairie s’est alors intégré au projet.

Leave a comment

This site uses Akismet to reduce spam. Learn how your comment data is processed.