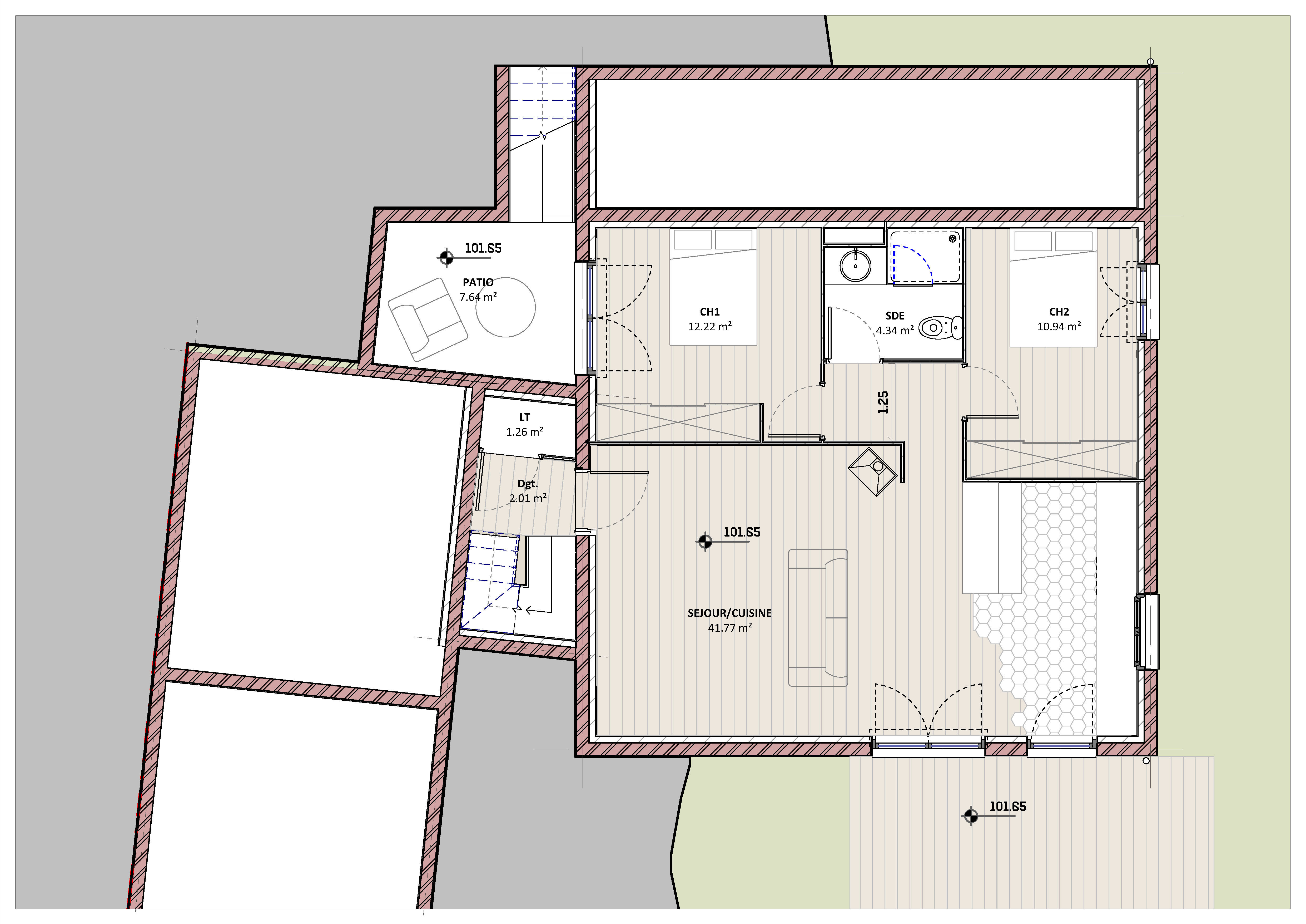
Projet d’une maison individuelle a Montauban. Maison de 190 m² avec dépendance en RDC Bas. La particularité de ce terrain étant la pente contraignante qui épouse cette parcelle situé dans les hauteurs de la ville.
Cette particularité a dessiné le projet et a permis de créer de nombreux interstices ou ce passe pleins de choses intéressantes, notamment la cour anglaise à l’arrière de la maison.







