I have recently found myself looking back at old projects; some I had deemed not interesting enough to publish or, at the very least, not high in my publication priorities. You’re thinking, “What?! he’s nuts looking back at old projects, that’s allways a bad trip down memory lane!!” So it DOES take a lot of time and energy to maintain an interface such as this one. Micromanaging over a hundred projects for publication, choosing which ones are interesting enough and might be susceptible to interest. You can’t just publish any old flipping thing either, so a decent amount of work is needed to update images, add details that were not pertinent at the time but are now, Graphical preferences might have changed in time too! Timing is important, objectives change etc. Needless to say;
“you are only as good as you’re worst piece”
This is a project I worked on in the beginning of 2018 and was one of the first projects I truly worked fully with REVIT. I had only worked new projects till then and most of them being new construction projects, it was quite a leap to start working angled walls etc. Nuts, because I really did not see Revit as the right tool for the job. But OMG. How wrong i was! The points cloud interface was a revelation for me and such a fun tool to use!
I won’t go back into point clouds but you can see how i managed the initial model in this old post : Réhab Montcalm Montpellier – Points cloud
So, the project is basically like any renovation, taking an existing, albeit crumbling building in a popular sector, giving it a major makeover and transforming it into housing for the “high” society…
The idea was to turn this old building into multiple high selling apartments with communal garden space. The initial project was a little too speculative for the ABF (architect batiment de France) of the region, so we had to tone down our proposition in a more harmonious way, to minimise exposure on such a project. The town not being ready to completely revitalise the area for the time being.
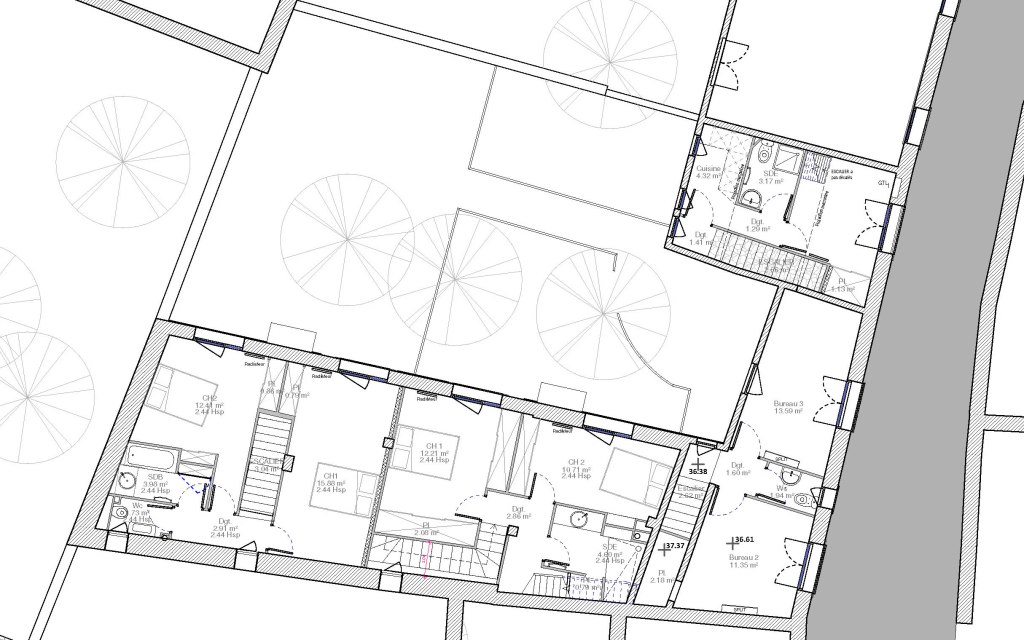
It has been a while since i worked the project and as such, the initial renders and perspectives i did are nowhere to be found on my servers, to my great dismay, so i will show some of the details i had drawn up during the PRO phase of the project.
OK, so the thing i love about rehabs is the whole historical context of it all. To quote Barney “Newer is allways better”. Thats CRAP! In architecture, being able to build ontop of the existing is like the holy grail. Its just a great way of keeping connected to what all brought us to where we are. There’s a soul and a will in every building! Any architect will tell you that… Even more so as it ages, and the untold beauty of a place like this, is what it’s all about.

As you can see, the existing building, situated right in the middle of this street elevation, does not quite sit well with the rest of the street. The idea was to slightly modify the street facade (which is the one that interests the ABF the most) to allow more light to enter the building while all the while harmonising the building into it’s surroundings.
Strutural engineers and historical building connaisseurs were approached to ascertain the feasability of the envisonned project.


You can scroll through, nearly, the entier project in a larger format below.





It is very time-consuming working in rehabs. That’s another big reason why newer is sometimes better. The mix between old and new is often costly and more demanding on time. The constraints are not the same, but all in all they are always incredibly fun projects to design! This one was especially challenging since the building had a lot of hidden secrets that were not easy to ascertain from the 3D scans, as well as budgetary constraints that made the design process… challenging. However;
It’s not always about the destination. Sometimes it IS all about the road walked…


