Réalisé en collaboration avec l’agence – Archiz
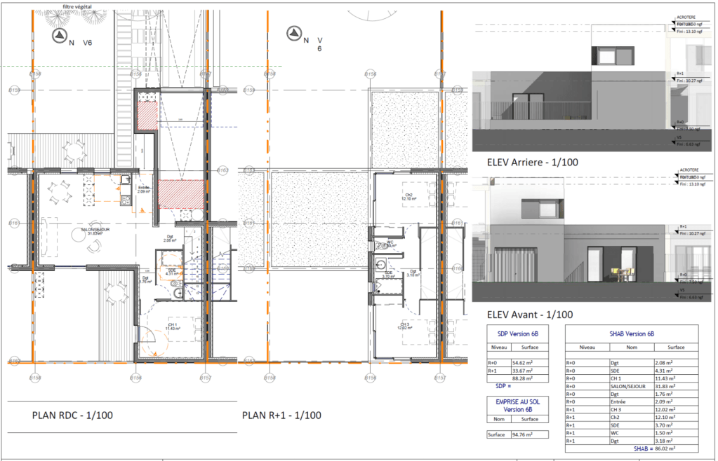
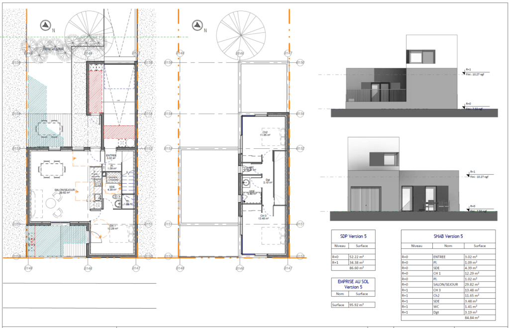
Un projet de 11 maisons individuelles en bande, réalisés sur base de concours. Une attention particulière aux exigences environnementales, qui débutait encore la scène de marché public français.
Le point focal des maisons étant une grande menuiserie en angle à l’étage qui donne sur un espace arborée nouvellement crée qui vient sublimer le projet urbain. Chaque maison est également dotée de 2 jardins extérieurs, un a l’avant et un plus petit, à l’arrière.










