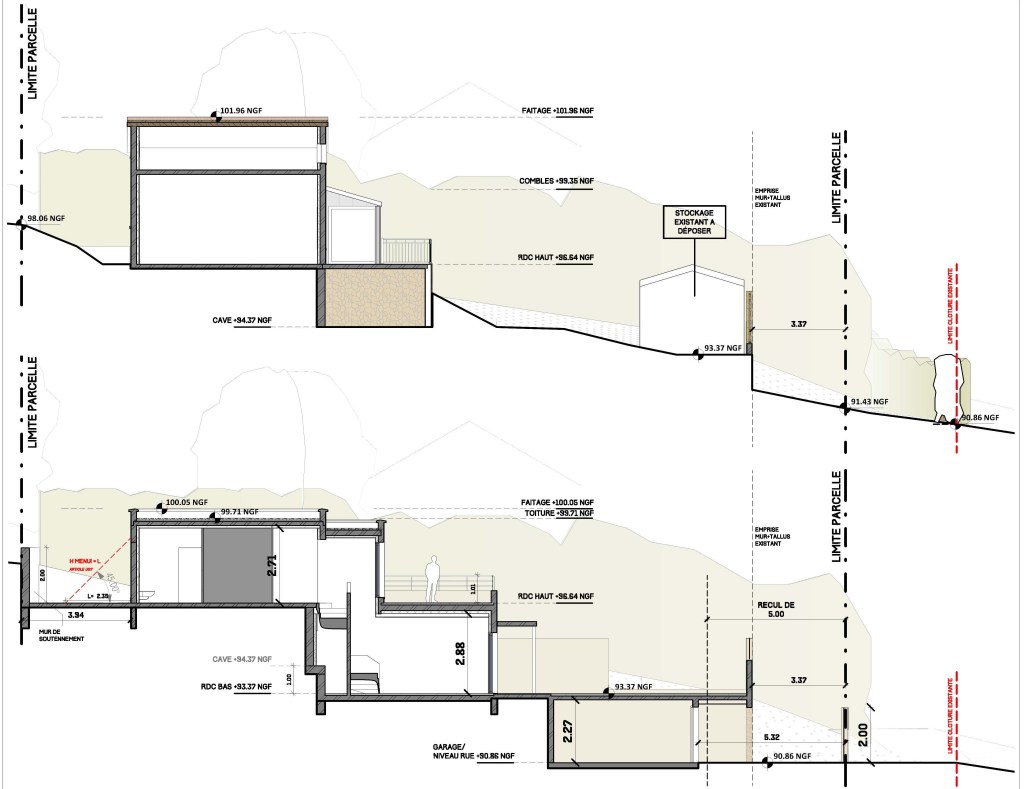
Un projet très intéressant mais d’une grande complexité du à la pente extrême du terrain avec un dénivelé de plus de 15 m de haut en bas. Le projet se dessine sur de nombreux plateaux et profite pleinement de la pente du terrain.
PC accordée, Phase 1 des travaux terminés 2023.







