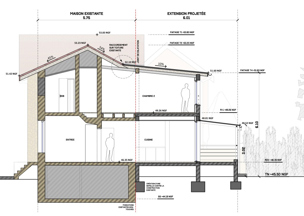
Un projet d’extension de maison de petite taille du à la contrainte de la présence de caves souterraines et un chiffrage du projet initial trop élevé pour la construction de fondations profondes et remblais des caves présentes. La solution été de construire en dessous de 10m².
DP accordée, travaux terminés 2022.





