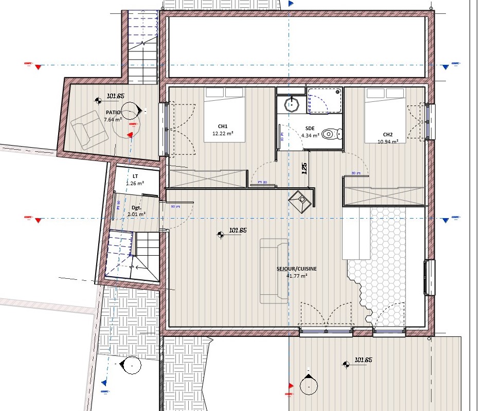
Projet d’une maison individuelle a Montauband. 190m² avec dépendance en RDC Bas. Terrain en pente.
Un projet conçu sur un terrain en pente qui demandait 3 différents niveaux de projet pour pouvoir tout rentrer. Un accès principal au R+0 qui mène ensuite a un niveau d’habitation plus bas qui mène a sa propre terrasse. Le R-1 supposé pouvant agir comme une dépendance les étés.


l’accès vers la maison se faisant le long de cette “passerelle”, le passage vers la porte d’entrée est assez majestueuse et cet espace peut aussi servir de surplus de la terrasse.

De l’autre coté de la maison la dépendance bénéficie d’un patio enterré en vue de la pente importante de ce coté du terrain.



